| Prijs | € 598.000,- k.k. |
| Type object | Woonhuis, eengezinswoning, twee onder een kap woning |
| Perceeloppervlakte | 280 m² |
| Woonoppervlakte | 168 m² |
| Aanvaarding | In overleg |
| Status | Verkocht onder voorbehoud |
Zeer complete en op rustige/beschutte woonlocatie gelegen 2/1 kapwoonhuis met achteraanbouw bij open vaarwater aan begin van woonstraat met alleen bestemmingsverkeer ( alleen de buren ). Eigen grond 280 m².
entree, hal, garderobe, modern toilet, trapopgang, ruime ( 60 m² ) kamer met achteraanbouw, berg-/provisiekast en openslaande tuindeuren, moderne open keuken en keukenblok met alle gewenste inbouwapparatuur o.a. quooker, koelkast, vaatwasser, oven, inductie kookplaat, afzuigkap en vriezer, bijkeuken met schuifkastenwand met wasmachine-aansluiting, garage/berging met openslaande deuren, heerlijke tuin op het zuiden met zonneterras en veel privacy ( geen directe achterburen ), houten bergschuur gecombineerd met tsjill-room met heater, oprit voor meerdere auto's en vrij achterom.
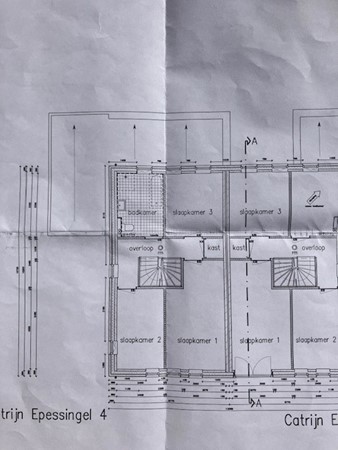
overloop, 3 ruime kantige slaapkamers, complete badkamer voorzien van ligbad, douchehoek, wastafelmeubel met dubbele wastafel en 2e hangend toilet.
via vaste trap naar 2 slaapkamers met dakvensters en aparte ruimte met 3e hangend toilet, wastafel, 2e wasmachine-aansluiting en dakvenster, aparte bergkast met cv-installatie en mechanisch ventilatiesysteem.
via vlizotrap naar kleine bergzolder.
- hoogwaardig gebouwd en afgewerkt met achteraanbouw; - ruim van opzet; - garagedak voorzien van sedum dak; - rustige woonstand nabij alle voorzieningen van zowel stad als sport; - uitstekend geisoleerd; - 12x zonnepanelen opbrengst ca. 3800 kwh; - energielabel A+; - 2e verdieping voorzien van 2 slaapkamers en aparte ruitme met 3e toilet, wastafel en wasmachine-aansluiting; - geen directe achterburen; - betonnen verdiepingsvloeren; - tuin op het zuiden; - een compleet geheel -- u bent welkom !
| Referentienummer | 07328 |
| Vraagprijs | € 598.000,- k.k. |
| Inrichting | Ja |
| Inrichting | Gestoffeerd |
| Status | Verkocht onder voorbehoud |
| Aanvaarding | In overleg |
| Aangeboden sinds | Donderdag 16 oktober 2025 |
| Laatste wijziging | Vrijdag 7 november 2025 |
| Type object | Woonhuis, eengezinswoning, twee onder een kap woning |
| Soort bouw | Bestaande bouw |
| Bouwperiode | 2012 |
| Dakbedekking | Dakpannen |
| Type dak | Zadeldak |
| Keurmerken | Brandveiligheid Politiekeurmerk |
| Isolatievormen | Dakisolatie Dubbel glas Muurisolatie Vloerisolatie Volledig geïsoleerd |
| Perceeloppervlakte | 280 m² |
| Woonoppervlakte | 168 m² |
| Inhoud | 600 m³ |
| Oppervlakte externe bergruimte | 26 m² |
| Aantal bouwlagen | 3 |
| Aantal kamers | 6 (waarvan 5 slaapkamers) |
| Aantal badkamers | 2 (en 1 apart toilet) |
| Ligging | Aan rustige weg Aan water Beschutte ligging Dichtbij openbaar vervoer In woonwijk Nabij school Vrij uitzicht |
| Type | Voortuin |
| Oriëntering | Noorden |
| Staat | Normaal |
| Tuin 2 - Type | Achtertuin |
| Tuin 2 - Hoofdtuin | Ja |
| Tuin 2 - Oriëntering | Zuiden |
| Tuin 2 - Heeft een achterom | Ja |
| Tuin 2 - Staat | Normaal |
| Energielabel | A+ |
| CV ketel | Intergas |
| Warmtebron | Gas |
| Bouwjaar | 2012 |
| Combiketel | Ja |
| Eigendom | Eigendom |
| Aantal parkeerplaatsen | 2 |
| Warm water | CV-ketel |
| Verwarmingssysteem | Centrale verwarming Vloerverwarming (gedeeltelijk) |
| Ventilatie methode | Mechanische ventilatie |
| Badkamervoorzieningen Badkamer 1 | Douche Ligbad Toilet Wastafelmeubel |
| Badkamervoorzieningen Badkamer 2 | Toilet Wasmachineaansluiting Wastafel |
| Tuin aanwezig | Ja |
| Heeft een garage | Ja |
| Beschikt over een internetverbinding | Ja |
| Heeft schuur/berging | Ja |
| Heeft een dakraam | Ja |
| Heeft zonwering | Ja |
| Heeft zonnepanelen | Ja |
| Heeft ventilatie | Ja |
| Kadastrale aanduiding | Bolsward B 8140 |
| Perceeloppervlakte | 280 m² |
| Omvang | Geheel perceel |